QUIOSC DIGITAL BUTLLETINS
Poliesportiu
Motor
Hoquei
Futbol
Resultats i classificacions

Seva rehabilitarà l’edifici de les oficines del camp de futbol

El cost total de l’actuació és de 340.757,76 euros

El 9 Nou
15/02/2026
Seva

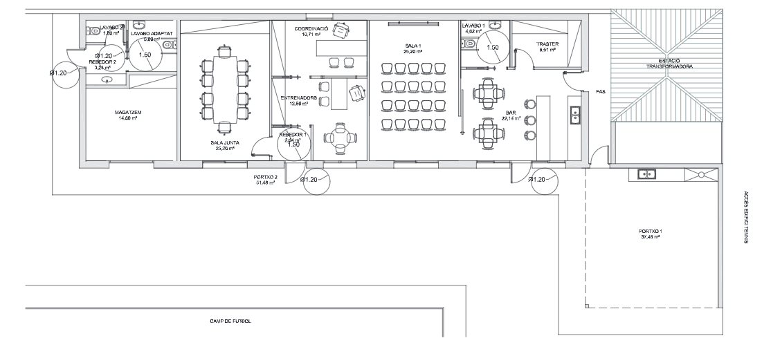
L’Ajuntament de Seva rehabilitarà aquest 2026 l’edifici de les oficines del camp de futbol municipal. El projecte preveu l’enderroc de l’actual construcció, que presenta diverses patologies estructurals i limitacions funcionals, i la construcció d’un nou equipament modern, eficient i adaptat a la normativa vigent en matèria d’accessibilitat, seguretat i sostenibilitat.

El nou edifici serà de planta baixa, amb dues zones ben diferenciades, i tindrà una alçada de 3,70 metres. D’una banda, hi haurà la zona de bar, amb sala principal, lavabo i traster, pensada com a espai de servei i trobada per a esportistes, famílies i aficionats. De l’altra, la zona d’oficines inclourà un rebedor, una sala de coordinació, una sala d’entrenadors, una sala de juntes i un magatzem. El projecte també incorpora banys públics, un porxo exterior i una zona porxada que oferirà protecció davant les inclemències meteorològiques.

El cost total de l’actuació és de 340.757,76 euros (IVA inclòs), dels quals prop del 80% serà finançat pel Programa General d’Inversions de la Diputació de Barcelona. Les obres es coordinaran amb la UE Seva amb l’objectiu de no interferir en el funcionament diari del club.

LA PREGUNTA

El ‘cas Zapatero’ compromet la continuïtat de Pedro Sánchez com a president del govern?

En aquesta enquesta han votat 188 persones.